Autodesk AutoCAD Architecture 2026 Free download famous architecture program, latest version 64 bit. Autodesk AutoCAD Architecture 2026 brings a refined experience for professionals who work with architectural design software. Built on the Autodesk CAD software platform, it merges the precision of 2D drafting software with the versatility of 3D modeling software, making it a dependable choice for those managing complex building projects. With its enhanced architectural drafting tools and BIM software integration, architects can create accurate layouts, elevations, and sections with minimal manual adjustments. The inclusion of design automation tools speeds up repetitive tasks, while CAD collaboration tools allow teams to work on the same DWG file software in real time. Whether running AutoCAD for Windows 10 or AutoCAD for Windows 11, the program maintains a responsive performance that helps meet demanding project timelines.

For those exploring CAD software for Windows for the first time, the Autodesk AutoCAD Architecture
 free trial offers a way to test its capabilities before committing to an AutoCAD Architecture subscription. The 2026 version comes with improved architectural visualization software features, making presentations to clients more engaging through realistic renders. Built-in architectural CAD tools simplify the creation of detailed floor plans, while 3D architectural modeling enables better spatial analysis. Professionals will find the integration with Autodesk Exchange Apps useful for adding extra AutoCAD Architecture plugins, further extending the software’s capabilities. Updates from Autodesk AutoCAD improve compatibility with the latest hardware and operating systems, ensuring smooth workflow on modern PCs. For those who need guidance, Autodesk AutoCAD Architecture tutorials and CAD problem solving resources are readily available through the official support channels.

Downloading AutoCAD 2026 Windows version is straightforward via Autodesk’s site, and the process ensures users receive the latest AutoCAD 2026 features and Autodesk AutoCAD updates. The AutoCAD Architecture system requirements are well-documented, making it easier to prepare your workstation for optimal performance. This building design software is ideal for architects, engineers, and designers who require precision and flexibility in their work. From CAD drawing software to architectural rendering software, the package includes all the CAD productivity tools needed for professional use. Whether working solo or in a large design team, the software’s CAD software troubleshooting support ensures minimal downtime. For those managing licenses, the Autodesk AutoCAD license process remains simple, giving professionals uninterrupted access to the industry’s most trusted Autodesk software for architects.
The Features of Autodesk AutoCAD Architecture 2026 Software Free Download:
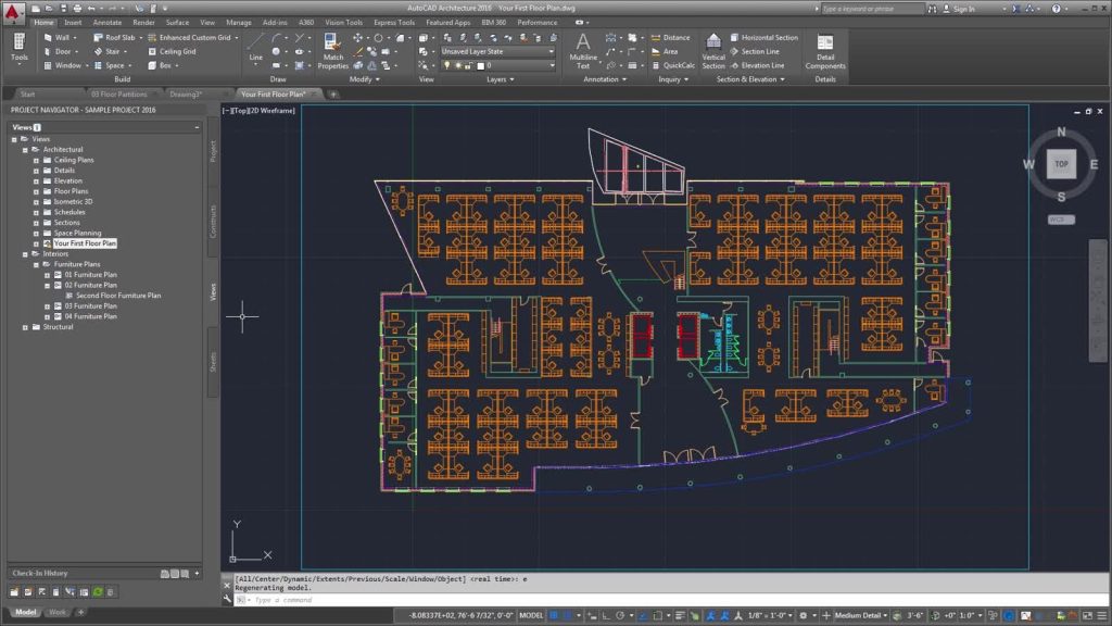
- Architectural Drawing Tools: Create floor plans, sections, and elevations with intelligent objects like walls, doors, and windows.
 - Style-Based Design: Use predefined or custom architectural styles for consistent design standards.
 - Automated Documentation: Generate schedules and annotations directly from designs.
 - IFC File Support: Import/export Industry Foundation Classes (IFC) for BIM workflow collaboration.
 - QSELECTPROPERTYSET: Filter objects by type and property set for quick selection.
 - Renovation Mode Insights: Track renovation activities with detailed Activity Insights logging.
 - Navigation Efficiency: Expand/Collapse All options in Project Navigator via right-click menu.
 - Connected Support Files: Share one set of support files across Autodesk Docs projects.
 - Performance Enhancements: Up to 11x faster file opening and 4x faster startup vs. AutoCAD 2025.
 - Smart Blocks: Automate block placement and replacement using AI-driven recognition.
 - Markup Import/Assist: Sync and update JPG, PNG, and PDF markups from Autodesk Docs.
 - Activity Insights: Monitor multi-user event logs with version history for collaboration.
 - Autodesk Docs Integration: Publish drawings as PDFs and manage project-aware settings.
 - AutoLISP with Visual LISP IDE: Streamline workflows through custom automation.
 - Cross-Platform Access: Work on 2D/3D DWG files via desktop, web, and mobile.
 - 8,800+ Architectural Components: Access a library of intelligent objects and styles.
 - AI-Driven Insights: Receive personalized macros and tips for faster project completion.
 - BDetect (BConvert): Convert repetitive objects/text to blocks with attribute tags.
 - Trace Layer Updates: Enhanced markup integration with Autodesk Docs for collaboration.
 - Customizable Interface: Tailor UI with APIs and Autodesk-approved extensions.
 
Technical Setup Detail of Autodesk AutoCAD Architecture 2026 Full Version:
| File Name | Autodesk_AutoCAD_Architecture_2026_Setup.exe | 
| Created By | Autodesk Team | 
| Publisher | Autodesk Inc. | 
| Developer | Autodesk Development Team | 
| Version | 2026 | 
| License Type | Commercial / Subscription-based | 
| Release Date | April 2025 | 
| Category | Architecture & CAD Design Software | 
| Languages | English, German, French, Spanish, Italian, Japanese, and more | 
| Uploaded By | Admin | 
| Official Website | https://www.autodesk.com | 
| File Size | 5.2 GB (approx.) | 
| File Type | .exe (Installer) | 
| Compressed Type | .zip / .rar | 
| Supported OS | Windows 10 / 11 (64-bit only) | 
System Requirements of Autodesk AutoCAD Architecture 2026 For Windows:
| Component | Minimum (will run at basic level) | Recommended (smooth / optimal performance) | 
|---|---|---|
| Operating system | 64-bit Windows 11 or Windows 10 (latest updates / supported build). | 64-bit Windows 11 (up-to-date) — latest Windows updates installed. | 
| Processor (CPU) | 64-bit Intel® or AMD® processor, 2.5–2.9 GHz (multi-core). ARM processors not supported. | 3+ GHz (high single-core speed preferred) — modern 6–8+-core Intel/AMD desktop CPU for multitasking and heavy tasks. | 
| Memory (RAM) | 8 GB (basic 2D drafting, small drawings). | 16 GB or more for typical work; 32 GB+ recommended for large datasets, point clouds, BIM workflows and complex 3D models. | 
| Graphics card (GPU) | DirectX-capable GPU. 2 GB VRAM (DirectX 11 compliant) — supports basic 2D/3D view manipulation. | Workstation-class GPU with 8 GB VRAM or greater; DirectX 12 capable; higher memory and bandwidth (e.g., 106 GB/s class) for large 3D models, 4K displays, and visualization. | 
| Display / Resolution | 1920 × 1080 (Full HD) with True Color. | 3840 × 2160 (4K) or greater for detailed work / multi-monitor setups; True Color. | 
| Storage (disk space) | ~10 GB free for program installation (SSD strongly recommended). | SSD (NVMe preferred) with ample free space; consider additional scratch/working SSD for large projects — install on SSD for best responsiveness. | 
| .NET / Framework | .NET Framework required per installer (AutoCAD 2026 uses modern .NET runtime). | Keep .NET and Windows updates current; follow Autodesk installer prompts. | 
| Pointing device | MS-Mouse compliant (standard mouse). | 3-button mouse or professional CAD mouse; tablet/pen optional for design work. | 
| Network / Licensing | Internet connection for activation; network license manager supported. | Fast/secure network for cloud services, shared projects and network licensing. | 
| Additional for large datasets / 3D / point clouds | May run slowly; needs significantly more RAM & VRAM. | 32 GB+ RAM, high-end GPU with 12 GB+ VRAM, fast multi-TB SSD(s). Recommended for point clouds, large BIM/MEP datasets and advanced visualization. | 
How to download Autodesk AutoCAD Architecture 2026 into Windows?
- First of all, click on below download button and shift on the download page.
 - On the download page, you can easily download via Direct link using IDM.
 - After downloading completed please follow the installation guide that given below
 
How to installed Autodesk AutoCAD Architecture 2026 Software into Windows PC?
- After downloading please used WinRAR Software if you have downloaded RAR or Zip file to Extract.
 - After extraction please open folder and then, double click on setup.exe file and start installation wizard.
 - After that, you have to accept the insallation policy and press Next.
 - After that, insallation will be started.
 - After installation completed please closed the installer.
 - Now run your software from desktop icon and start what you went to do with your software.
 - I hope you like this.
 - If you like please shared this post with your friends and family on Facebook. X, LinkedIn. And So on.
 

